Se presenta a la venta una finca de alto valor estratégico, actualmente en explotación como espacio para bodas y eventos. El activo combina solidez inmobiliaria con rentabilidad operativa inmediata, ideal para inversores que busquen posicionarse en el mercado de restauración y hospitality, tanto a nivel nacional como internacional.
Superficie construida: aprox. 3.000 m²
Terreno: más de 11 hectáreas con gran potencial de desarrollo y diversificación de usos
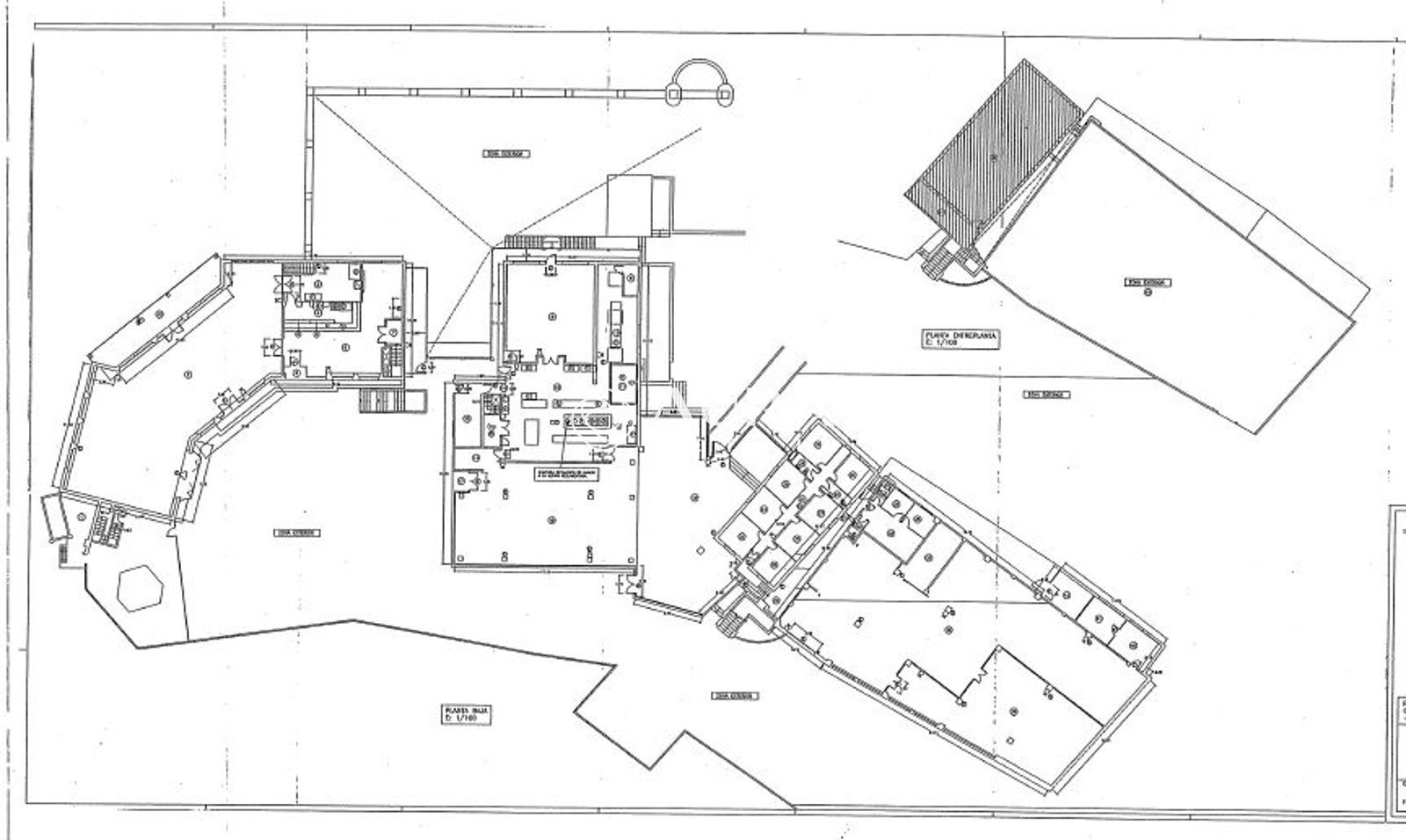
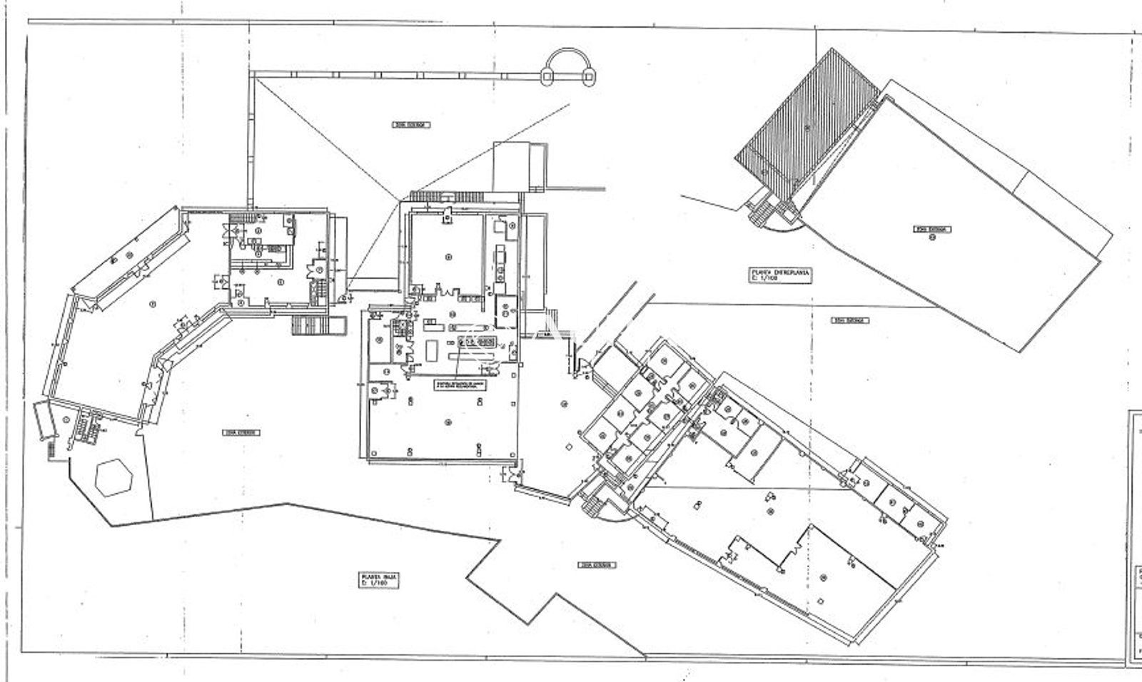
Distribución actual: varias viviendas independientes, salones y comedores de gran capacidad, zonas exteriores versátiles, cocina industrial equipada y permisos en vigor.
Planta baja: 1.554,81 m².
Entreplanta: 101,03 m².
Planta primera: 139,27 m².
Planta sótano: 720,21 m².
Parking privado: 478,45 m².
Actualmente, el negocio factura alrededor de 2M € anuales con apertura parcial, lo que demuestra su elevado potencial de escalabilidad y rentabilidad.
La combinación de infraestructura consolidada, ubicación estratégica y recorrido de crecimiento convierte a este activo en una inversión excepcional para quienes busquen un retorno atractivo en el sector inmobiliario especializado en restauración, hospitality y eventos.
Desde Aura Retail brindamos un asesoramiento integral para grandes empresas, centrados en la maximización del valor de su marca. Nos especializamos en encontrar ubicaciones premium que se alineen con sus objetivos corporativos y comerciales, optimizando tanto el espacio como la visibilidad de su marca.
Nuestra filosofía se centra en proporcionar soluciones de alto nivel, respaldadas por estudios previos y un profundo conocimiento del mercado, asegurando una ubicación estratégica que impulse su crecimiento.
Le invitamos a ponerse en contacto con nosotros para obtener más información o agendar una visita al inmueble que mejor se ajuste a sus objetivos comerciales. Estamos comprometidos con el éxito de su marca y le ayudaremos a tomar la mejor decisión.