Ideal para negocios con necesidad de alta densidad de población
Barcelona (Eixample) - REF. 1004

952,26 m2

293,10 m2
alquiler: 7.400 €/mes
antes: 8.000 €/mes
Descripción

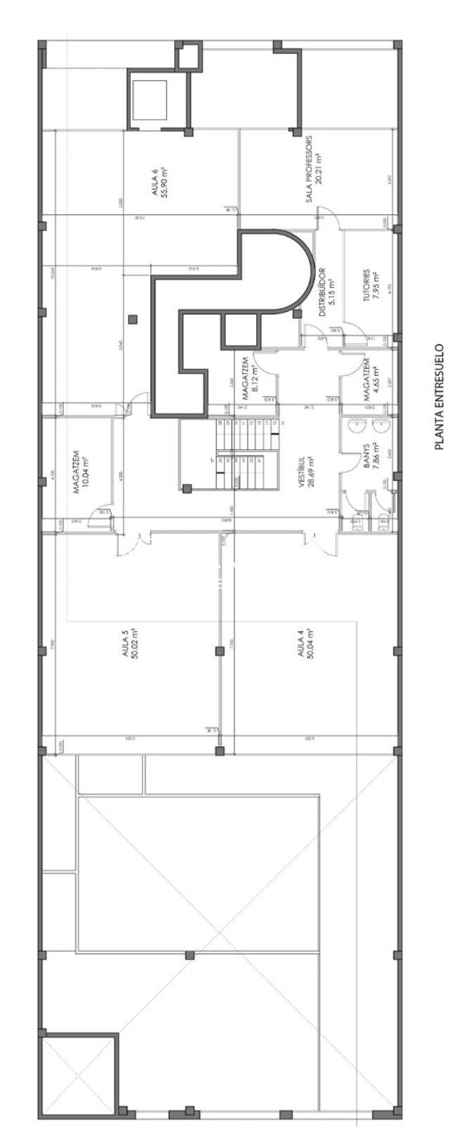
Magnífico local de 952,26 m² de uso comercial distribuidos en una planta baja de 377,75 m² con techos de más de 5 metros de altura, una planta entresuelo de 281,41 m² de uso comercial y un amplio patio privado de 293,10 m².

Ambas plantas están conectadas mediante escaleras y ascensor, facilitando el flujo interno. El estado de conservación es excelente, sin necesidad de reforma, y cuenta con salida de humos, ampliando las posibilidades de actividad. Además, dispone de una fachada de 6 metros lineales que ofrece gran visibilidad para cualquier operador.

El local se encuentra a escasos metros del Paseo de Sant Joan, en Dreta de l'Eixample, en una zona de alta densidad residencial y cercana a importantes puntos de interés turístico. 

Desde Aura Retail brindamos un asesoramiento integral para grandes empresas, centrados en la maximización del valor de su marca. Nos especializamos en encontrar ubicaciones premium que se alineen con sus objetivos corporativos y comerciales, optimizando tanto el espacio como la visibilidad de su marca.

Nuestra filosofía se centra en proporcionar soluciones de alto nivel, respaldadas por estudios previos y un profundo conocimiento del mercado, asegurando una ubicación estratégica que impulse su crecimiento.

Le invitamos a ponerse en contacto con nosotros para obtener más información o agendar una visita al inmueble que mejor se ajuste a sus objetivos comerciales. Estamos comprometidos con el éxito de su marca y le ayudaremos a tomar la mejor decisión.


Características
Precio Alquiler 7.400 €/mes
Año de construcción 1993
Construidos 952,26 m2
Útiles 658 m2
Calefacción Electrica
Estado Buen estado
Ascensor
Aire acondicionado
Salida de humos
Adaptado
Calificación Energética (C) VER
Luz
Agua
Sistema antiincendios
Acceso discapacitados
Vídeos
Escalas de eficiencia


-
-

Tu agente
Aura Auge Reyes
Contáctanos

Si deseas más información sobre esta propiedad, por favor, rellena el formulario.

 Sí, he leído y/o acepto las Condiciones de uso y la Política de privacidad